Người Đà Nẵng có truyền tai nhau một câu nói “Mưa không chỉ để đến vào những ngày mưa”. Mưa Coffee Shop tự bao giờ đã trở thành nơi dừng chân quen thuộc của họ mỗi khi cần kiếm tìm một chốn bình yên, rộng rãi, thoải mái như ngoài trời, mà lại chẳng sợ mưa sợ nắng. Nếu có dịp đặt chân đến thành phố Đà Nẵng xinh đẹp này, hãy thử ghé thăm Mưa để trải nghiệm không gian đặc biệt này.
Thông tin công trình Mưa Coffee Shop
- Địa chỉ: 23 An Thượng 10, Mỹ An, Ngũ Hành Sơn, Đà Nẵng, Việt Nam
- Thiết kế: 85 Design
- Diện tích: 130 m2
- Năm hoàn thành : 2018
- Khách hàng: Ông Nhật Tân
- Kiến trúc sư phụ trách: Tô Hữu Dũng
Không gian kiến trúc và nội thất công trình Mưa Coffee Shop
Ở Việt Nam có rất nhiều nhà thép. Chúng có thể dễ dàng được tìm thấy trên khắp đất nước và được xây dựng cho các mục đích sử dụng khác nhau. Vì vậy, hầu hết mọi người vẫn nghĩ nhà thép là nhà xưởng, nhà tạm và khó có thể trở thành công trình đẹp. Vì vậy tôi muốn chứng minh rằng: Nhà thép không khô cũng không cứng. Nhà thép hoàn toàn có thể làm nên những công trình hấp dẫn và chất lượng cao

Cách đây một năm, lần đầu tiên tôi gặp chủ, anh ấy muốn tôi tư vấn và thiết kế quán cà phê kết cấu thép trên diện tích 127m2. Trong giai đoạn đầu tiên, chúng tôi đã làm việc rất ăn ý với nhau. Tuy nhiên, trong quá trình thi công, nhà thầu đã không thực hiện tốt công việc và đã thay đổi ý kiến rất nhiều so với thiết kế ban đầu của tôi. Thế là tôi chấm dứt hợp tác, sớm rút lui khỏi dự án đó. Đúng như những gì tôi mong đợi, công trình hoàn thiện không giống như thiết kế ban đầu và chất lượng công trình cũng như độ hoàn thiện rất tệ.

Hơn hai tháng trước, anh lại đến gặp tôi. Lần này anh ấy nhờ tôi tiếp tục thiết kế một quán cà phê bằng thép mới với kinh phí 48.000 USD. Tuy nhiên, trước khi chấp nhận yêu cầu của anh ấy, tôi đã nói với anh ấy rằng: “Làm ơn! Hãy chấp thuận và làm theo thiết kế của tôi, nếu không thì cánh cửa sẽ ở ngay đằng kia”. Và tất nhiên anh ấy đã xin lỗi lần cuối và hoàn toàn đồng ý với điều kiện của tôi. Lần này anh muốn tôi thiết kế quán cà phê theo phong cách vỉa hè Việt Nam, tức là phải thoáng mát, sáng sủa, mang lại cảm giác ngồi ngoài trời mà vẫn ở trong nhà. Tuy nhiên, mưa nắng không thể ảnh hưởng đến khách hàng. Và đó là lý do Mưa Coffee Shop ra đời!

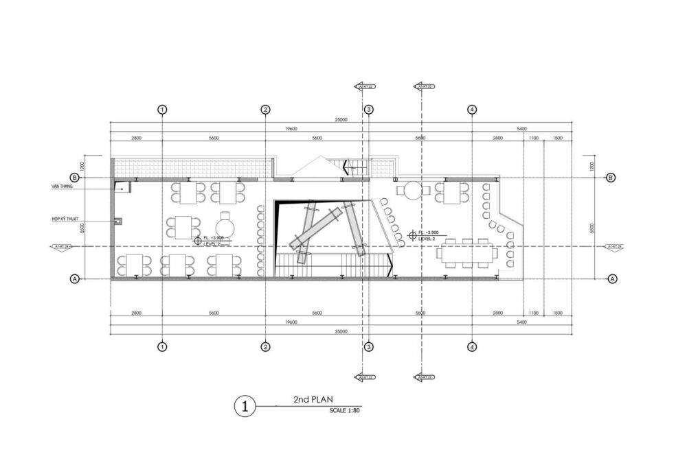
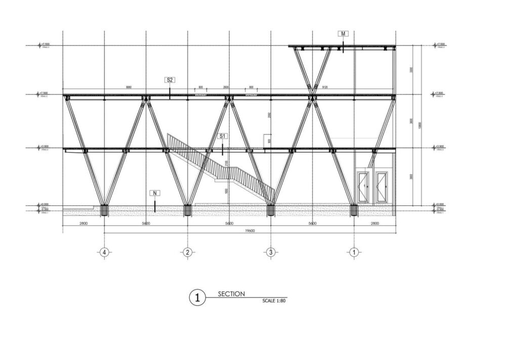
Mưa Coffee lấy cảm hứng từ những Kim Tự Tháp Ai Cập với thiết kế hình tam giác làm chủ đạo. Nhìn từ ngoài, quán được tạo nên từ hai đường thẳng song song ghép nối bằng một đường zigzag chạy dài xuyên suốt, tạo nên 3 “Kim Tự Tháp” hoàn chỉnh. Một đường cắt ngang Kim Tự Tháp chia cách tạo nên 2 tầng riêng biệt. Ngoài ra, trên đỉnh tam giác còn có thêm một tầng thượng, dành riêng cho những khách muốn tận hưởng không gian ngoài trời. Tất cả lan can cho ban công, cầu thang của mưa cũng được tạo hình tam giác từ những đường zigzag với biên độ hẹp hơn.

Ngoài chất liệu chính là thép, phần còn lại của Mưa Coffee được tạo nên từ gỗ và gạch. Với mong muốn tái hiện một Kim Tự Tháp thu nhỏ ngay trong lòng Đà Nẵng, KTS đã lựa chọn những bức tường gạch không trát làm bức phông nền cho toàn bộ công trình

Để bổ sung ánh sáng cho quán, đặc biệt là cho tầng một, trên trần quán có hai khoảng giếng trời hình chữ nhật vô cùng cá tính. Cùng với đó, KTS khéo léo lồng ghép những chiếc đèn nhiều chủng loại, kích thước treo dây dài rũ từ trên trần.

Toàn bộ nội thất ở trong Mưa Coffee đều được làm từ một vật liệu quen thuộc: gỗ. Những chiếc bàn gỗ tròn, bàn vuông nhỏ cho cặp đôi, bàn chữ nhật cho nhóm nhỏ, bàn chữ nhật dài cho nhóm lớn và bàn băng dài dành cho những khách lẻ được sắp đặt tinh tế tại đây..

Trong một không gian toàn gỗ và gạch, những chậu cây mang lại tông xanh mát, làm dịu không gian quán. Những chậu cây được bài trí theo phong cách tự nhiên, khiến người bước vào không có cảm giác “sắp đặt”
Hình ảnh và bản vẽ công trình Mưa Coffee Shop












































Việt Nam là “xứ sở” của những công trình thép, từ nhà máy, nhà tạm, cho đến một số công trình nhà ở. Tuy nhiên, ý tưởng đưa công trình thép vào thiết kế quán cafe là một ý tưởng mới mẻ và có phần hơi… “điên rồ”. Bởi lẽ, nhắc đến thép là nhắc đến sự cứng cáp, bền vững, thay vì sự thơ mộng, bay bổng của một quán cafe. Và KTS Tô Hữu Dũng, người chịu trách nhiệm chính về dự án này đã chứng minh rằng, thép hoàn toàn hoàn toàn có thể.
Cảm ơn bạn đã đọc bài viết!
