Với sự phát triển của xu hướng cafe văn phòng, nhiều chủ đầu tư đã mạnh dạn xây dựng những quán cafe tích hợp cả cafe giải trí và văn phòng làm việc. Nổi bật trong số đó phải kể đến The Workstation Coffee. Mô hình này đã ngay lập tức thu hút được một lượng khách đông đảo ngay từ những ngày đầu tiên. The Workstation Coffee không chỉ là cà phê, mà còn là nơi thư giãn tuyệt vời của thành phố ồn ào và tấp nập!
Thông tin công trình The Workstation Coffee
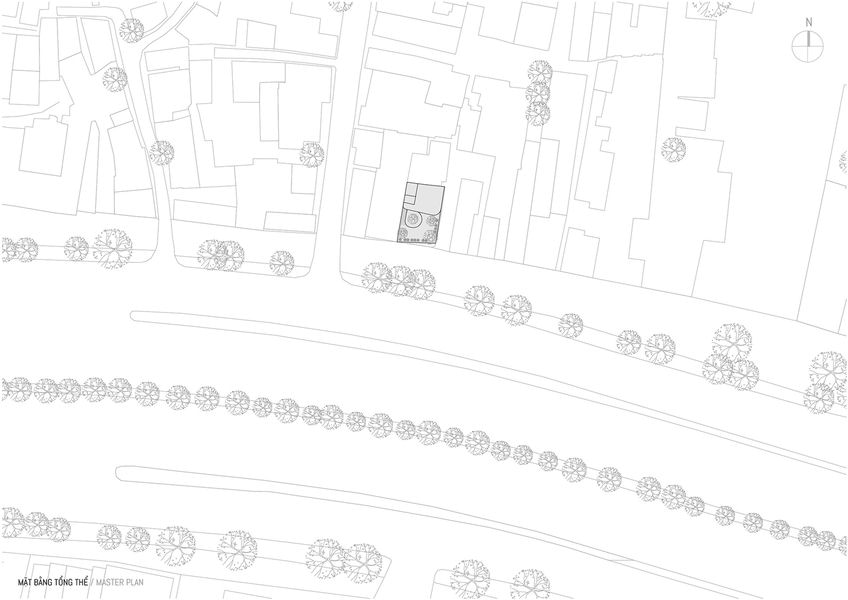
- Địa chỉ: 2A Điện Biên Phủ, Phường 25, Bình Thạnh, Hồ Chí Minh, Việt Nam
- Thiết kế: CoRi Design , MDA Architecture
- Diện tích: 420 m2
- Năm hoàn thành: 2019
- Ảnh: Quang Trần
Không gian kiến trúc và nội thất The Workstation Coffee
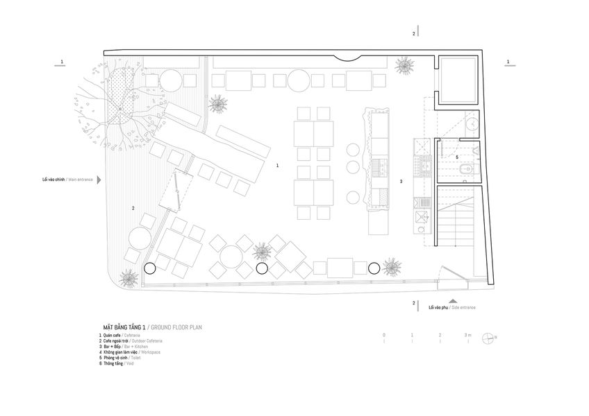
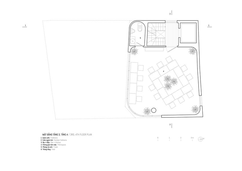
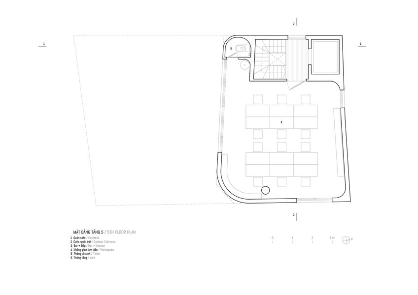
Tòa nhà có diện tích 118m2 gồm 6 tầng và được chia làm 2 phân đoạn phần thân chính và phần chính. Trong khi phần thân chính là tầng trệt và tầng 2 thì phần đầu từ tầng 3 đến tầng 6. Mục đích của tòa nhà là: làm nơi làm việc, tổ chức hội họp, cho thuê văn phòng kết hợp bán cà phê.

Chúng tôi tổ chức sảnh chính đặt ở tầng 2 để ưu tiên khu vực kinh doanh ở tầng trệt. Để di chuyển giữa các tầng, chúng tôi bổ sung thêm cầu thang dựa vào tường nằm song song với con hẻm phía bên phải tòa nhà. Và một cái khác nối tất cả các tầng ở đoạn đầu.

Về hệ thống chiếu sáng, tất cả các hành lang đều hướng về phía trước để lấy ánh sáng tự nhiên. Tầng 3 có ban công đón ánh nắng trực tiếp. Vì vậy, chúng tôi thêm cây xanh để tạo bóng mát và trang trí.

Nhìn chung, để làm cho cả hai phân đoạn trông có vẻ thống nhất, chúng tôi cố tình kết nối chúng với những đường cong và ban công, cùng mục đích với mái hiên và nội thất. Đặc biệt là đường cong bắt đầu từ mặt tiền tòa nhà ở tầng 3, kéo dài ra phía sau và cuối cùng là một khoảng sân thoáng đãng với cây xanh tỏa bóng mát xuống tầng 2 và tầng trệt. Hoàn toàn phù hợp cho những ai thích thưởng thức cà phê ngoài trời.

Cuối cùng, để giảm nhiệt từ khí hậu, chúng tôi khuyên bạn không nên mở cửa/cửa sổ quá thường xuyên để duy trì nhiệt độ trong nhà.

Ưu điểm – Tòa nhà nằm ngay góc ngã 3, hướng Nam, mặt tiền thông ra đường giao thông đông đúc. Nhược điểm – Do phong cách thiết kế nên diện tích sàn từ tầng 3 đến tầng 6 giảm xuống chỉ còn 53m2. Theo luật xây dựng, trong quy hoạch, tất cả các tòa nhà đều phải có khoảng lùi trong sử dụng đất dẫn đến khoảng trống lớn phía trước tòa nhà.
Hình ảnh và bản vẽ thiết kế của The Workstation Coffee



































The Workstation Coffee sẽ mang đến cho bạn một không gian đủ thoải mái, thư giãn như một quán cafe thông thường nhưng đồng thời cũng đủ yên tĩnh, khang trang như một văn phòng làm việc thực thụ.
Cảm ơn bạn đã đọc bài viết!

