The 59 Café ở Đà Nẵng là một quán cà phê độc đáo, được chuyển đổi từ một tòa nhà cũ xây dựng từ những năm 70. Không giống như các quán cà phê hiện đại khác mà chúng ta thường thấy ở Đà Nẵng – một thành phố đông đúc, The 59 nằm ẩn mình ở cuối một con hẻm nhỏ trên đường Hải Phòng.
Thông tin công trình The 59 Cafe
- Địa chỉ: 59 Hải Phòng, Thạch Thang, Hải Châu, Đà Nẵng
- Thiết kế: Viet D Architects
- Diện tích: 135 m2
- Năm: 2020
- Ảnh: Trí Lê
Không gian kiến trúc và nội thất công trình The 59 Cafe
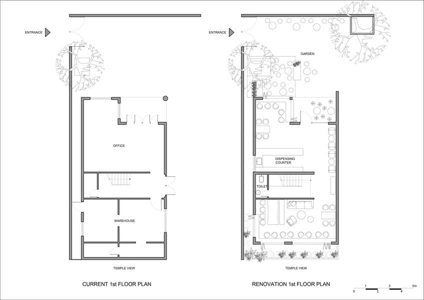
The 59 Cafe mang phong cách retro kết hợp với chút cá tính industrial, tạo nên một không gian độc đáo giữa lòng thành phố Đà Nẵng. Ban đầu, đây là một căn nhà 3 tầng cũ, và gia chủ đã cho thuê một số phòng, trong khi một số khu vực khác đã bị bỏ hoang nhiều năm.

Mọi người có thể hỏi, điều gì khiến The 59 nổi bật hơn nhiều quán cà phê khác? Hãy để chúng tôi trả lời. Với thiết kế tinh tế và chủ nhân là người có kiến trúc tâm huyết, ngôi nhà cổ bê tông xám xịt cuối ngõ cuối cùng biến thành quán cà phê ấm áp, thân thiện, theo phong cách hoài cổ có chút pha lẫn công nghiêp.

Theo công ty thiết kế Viet-D, công trình cổ này đã có từ những năm 70, tức là cách đây khoảng chục năm. Tuy nhiên, ngôi nhà cổ kính, cồng kềnh này hiếm khi được gia chủ sử dụng. Trên thực tế, dù có tới 3 tầng nhưng chỉ có vài phòng được cho thuê, còn lại vẫn giữ nguyên trong vài năm.

Sau một thời gian, khi công ty phát hiện ra vẻ đẹp của ngôi chùa lộng lẫy phía sau tòa nhà, họ đã đi đến quyết định dỡ bỏ toàn bộ bức tường phía sau, làm lộ ra khung cảnh quý giá của ngôi chùa cổ kính đó. Mặc dù lý tưởng biến tòa nhà cũ này thành quán cà phê là để phục vụ nhu cầu của thế hệ trẻ nhưng nhà thiết kế mong muốn không làm mất đi những kỷ niệm của gia đình với ngôi nhà này.

Vì vậy, họ quyết định giữ lại những vật liệu cũ như đá rửa, gạch men và đặt chúng bên cạnh những vật liệu mới, có độ tương phản cao với bê tông và thép. Bằng cách thực hiện điều này một cách tỉ mỉ nhất có thể, nhóm kiến trúc đã tạo ra thành công nhiều đặc điểm cũng như những cảm xúc nhất định khi nói đến khái niệm quán cà phê. Chẳng hạn, ngay từ cái nhìn đầu tiên, chúng ta có thể nhận ra ngay điều gì đó khá thú vị về tòa nhà đồ sộ, màu xám này nhưng vẫn chứa đựng cảm giác hoài niệm về những gì còn sót lại…

Hơn nữa, việc nằm ngay dưới tán lá rộng mang lại cho The 59 một lợi thế rất lớn. Nó góp phần xây dựng mảng xanh phía trước quán, kết nối với sân vườn cũng như tạo cho khách hàng ấn tượng về một quán cà phê thân thiện với môi trường. Hơn nữa, chủ quán cũng không quên tận dụng những món đồ cũ của gia đình như máy ảnh, cassette,… Tất cả đều được đặt ở từng góc nhỏ trong quán nhằm tạo chủ đề cổ điển và cũng để đảm bảo rằng sự kết nối giữa các không gian bên trong quán cà phê thật chặt chẽ.
Hình công trình The 59 Café.




















Từ những điều bé nhỏ ấy đã tạo nên một The 59 Café mang một vẻ đẹp hoài cổ rất riêng giữa lòng thành phố Đà Nẵng. Đến với The 59 Café bạn sẽ được thư giãn khi hoà mình vào không gian thoải mái ở nơi đây. Đặc biệt vào những ngày mà bản nhạc trữ tình Acoustic chợt cất lên, bao nhiêu mệt mỏi, lo toan bỗng “trốn” đi đâu mất.
